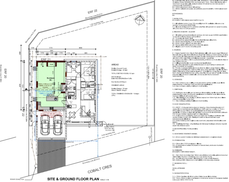
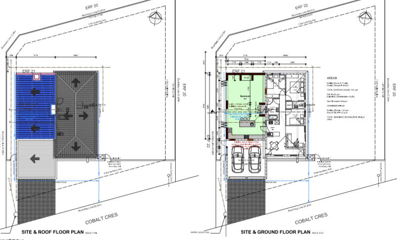
Building Project renovation.WC
This project in Burgundy Estate in Cape Town, the building plans have been approved by both the municipality and the body corporate. It’s a sunroom with a built in braai, open plan with, double sliding doors, and kitchen with island. The total combined coverage will be 164sq.m




